Book et uforpligtende møde
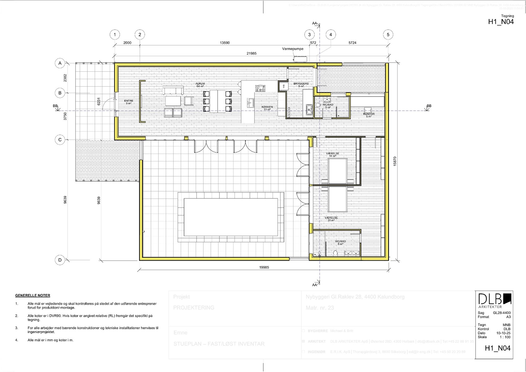
Skitseforslaget viser ombygningen af underetagen ved spisestue og køkkenalrum, der viser overgangen til stuedelen og trappeopgangen til anden sal.
Projektnavn
Ombygning T2034 3450 Allerød
Placering
3450 Allerød
Omfang
Status
Skitseforslag
Om DLB ARKITEKTER ApS
Vi har stor erfaring med projektudvikling, skitsering og planlægning, og har mere end 10 års erfaring med dette.
DLB ARKITEKTER har den fornødne viden om, hvordan vi kan omsætte dine ønsker til et tilfredsstillende projekt.
Områder
Holbæk
Kalundborg
Ringsted
Køge
Slagelse
Næstved
Kontaktoplysninger
Ønsker du at skrive til os direkte kan du benytte vores kontaktformular, eller skrive til e-mail: dlb@dlbark.dk.
Tegnestuen er beliggende:
Østerled 28D, 2 sal
4300 Holbæk
Har du behov for hjælp til byggetilladelse?Klik her
Har du nogle spørgsmål?
Mandag: 09.00 – 17.00.
Tirsdag: 09.00 – 17.00.
Onsdag: 09.00 – 17.00.
Torsdag:09.00 – 17.00.
Fredag: 09.00 – 14.00.
Lørdag: Lukket.
Søndag: Lukket.
Ring: +45 2288 9135
© 2021 DLB ARKITEKTER ApS | CVR-nummer: 40743464 | Læs cookiedeklaration her